Kaiyun(中国)开云-官方网站

2024满京华最新发布:满京华金硕和府-开发商电话—开云官方登录入口
您好,欢迎进入 开云装饰工程有限公司官网!

全国咨询热线

0750-3092496

2024满京华最新发布:满京华金硕和府-开发商电话

发布时间:2025-08-25 18:51浏览次数:

  取证了!将于当天晚上19点半签到,20点开始开盘选房!本次开盘优惠也非常喜人。(本项目地址位于光明中心区内,距6号线米。)

2024满京华最新发布:满京华金硕和府-开发商电话(图1)

  ,过来我们营销中心看房务必记得提前来电预约,预约看房的话最终的价格还能更加优惠。航拍实景图欣赏

  【开发商】:深圳市满京华置业投资有限公司【地址】:深圳·光明中心·光辉大道与狮山三街交汇处·6号线m【总占地面积】:约11万㎡【总建筑面积】:约88万㎡【金硕和府占地面积】:约0.88万㎡【金硕和府建筑面积】:约7.48万㎡【金硕和府总套数】:458户【产品户型】:建筑面积约85-88m²三房两卫、建筑面积约110-114m²四房两卫、建筑面积约113-119㎡四房两卫【开发商电线(已认证)

  【梯户比】:1栋49F 3T6户、2栋33F 2T/6户【车位比】:1:1.10(505个)【容积率】:5.74【物业费】:4.3元/㎡/月【产权年限】:70年【批地时间】:2023年4月【交楼时间】:2026年底

2024满京华最新发布:满京华金硕和府-开发商电话(图2)

2024满京华最新发布:满京华金硕和府-开发商电话(图3)

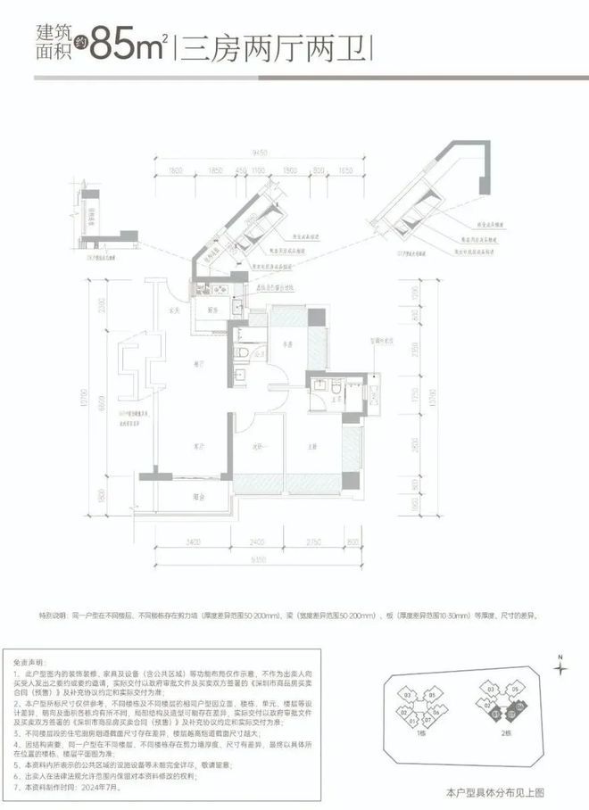
  户型西南、东南朝向,竖厅设计。S墙设计预留冰箱卡槽,0.8米的可改造飘窗设计,尤其是主卧和书房的双飘窗设计,赠送拉满。

2024满京华最新发布:满京华金硕和府-开发商电话(图4)

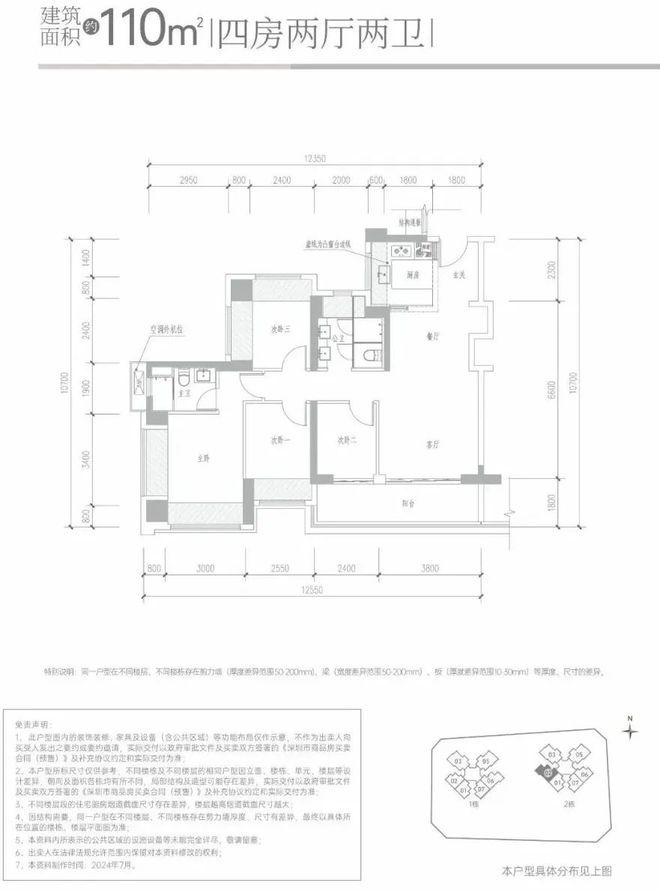
  户型西南、东南朝向,竖厅设计。S墙设计预留冰箱卡槽,客厅3.8米开间,6.2米大阳台。110多平的面积,四个房间改造前的宽度分别达到了3米、2.55米、2.4米和2.4米,都能做到比较舒适的尺寸。

2024满京华最新发布:满京华金硕和府-开发商电话(图5)

  户型西北、东北朝向,竖厅设计,客厅4米开间。不足是只有一个4米开间的阳台,朝向不太好。优点是可以看科学公园,深圳国际美术馆,景观视野比较好。

  ,主要区别在于,飘窗宽度做到0.8米,主卧和书房的飘窗由一个增加到两个,再加上采用新规面积计算方式,整体使用率近一步提高。

  (含赠送)。4、名校环伺,项目配建3所幼儿园,周边分布有多所学校,包括有华师大附属星河小学、深实验光明学校、深圳小学等多所市属名校分校。

  周边也分布有多所学校(具体学区范围以官方公布为准),包括有华师大附属星河小学,2024年录取积分:第八类27.7分;

2024满京华最新发布:满京华金硕和府-开发商电话(图6)

  周边分布有地铁6号线的光明、科学公园站,距离约1公里左右,两站可换乘13号线,规划有另一条直达南山科技园的29号线,轨道交通便利。

  家门口有科学公园,占地面积约为208万㎡,公园内规划有科学岛、深圳国际美术馆、科技馆新馆、西方美术馆等,紧邻科技创新文化集群。

  临近狮山公园、约9.4万㎡的东周文化公园,约10万㎡的开明公园,约56万㎡的新城公园等丰富绿色生态资源。

2024满京华最新发布:满京华金硕和府-开发商电话(图7)

  项目自带商业综合体外,1公里左右还有在建的星河cocopark,以及3公里处还有目前光明最繁华的凤凰城蓝鲸世界,万达广场等大型商业。

2024满京华最新发布:满京华金硕和府-开发商电话(图8)

  满京华项目沿光辉大道从西到东设计范围涵盖10块用地,总用地面积约109398㎡。其中项目用地7块,返还用地1块,公共绿化用地2块。

2024满京华最新发布:满京华金硕和府-开发商电话(图9)

  整个工程进度最快的为05-05地块「楼村商业大厦」和05-10地块「金硕华府」。

2024满京华最新发布:满京华金硕和府-开发商电话(图10)

2024满京华最新发布:满京华金硕和府-开发商电话(图11)

  满京华项目选取了位于光明中心区规划红线范围内的楼村狮山工业区作为试点,周边紧邻科技创新文化集群,如科学kaiyun登录入口 开云平台网站岛、科技馆新馆、西方美术馆等,是光明科学环廊核心地带之一。

2024满京华最新发布:满京华金硕和府-开发商电话(图12)

  05-03、05-05地块总建筑面积约222623㎡,集具有国际、艺术、现代风格kaiyun登录入口 开云平台网站的高端住宅、办公、商业、配套等。

2024满京华最新发布:满京华金硕和府-开发商电话(图13)

  其中主要包括1栋约180m超高层办公写字楼,3栋超高层住宅(住宅最高约150m)及其商业配套。

2024满京华最新发布:满京华金硕和府-开发商电话(图14)

  其中住宅05-03地块较为狭长,3栋塔楼一字排开获取最佳景观效果,05-05地块办公塔楼建筑立面采用框架式幕墙,竖明横隐,高区塔楼层级叠退,强调建筑形象的向上拔升感,竖向线条加玻璃幕墙,虚实结合,视觉效果轻盈简洁。

  办公塔楼地标冠以“光明之灯”为主题,与科学馆、西方美术馆形成立体三角关系。

0750-3092496