Kaiyun(中国)开云-官方网站

狮山芯澜庭壹号院:低密墅区遇上公积金新政置业正当时—开云官方登录入口
您好,欢迎进入 开云装饰工程有限公司官网!

全国咨询热线

0750-3092496

狮山芯澜庭壹号院:低密墅区遇上公积金新政置业正当时

发布时间:2025-09-12 21:55浏览次数:

  您当前使用的浏览器版本过低,可能存在安全风险,建议升级浏览器,或者用以下浏览器浏览

  近期苏州公积金政策迎来利好,商转公政策更加灵活,个人最高可贷120万,家庭最高150万,符合条件的全日制本科以上学历还可再提升50%。这一政策无疑为许多购房者减轻了压力,让置业梦想更加触手可及。在这样的大背景下,狮山核心区域的澜庭壹号院,以其独特的低密墅区规划,正成为众多置业者的关注焦点。

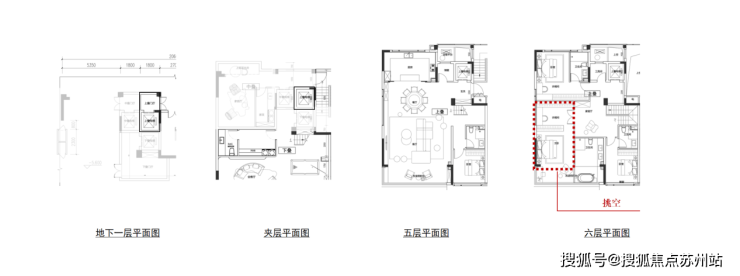
  澜庭壹号院,坐落于狮山核心区域,是一个真正意义上的低密墅区。整个项目规划了约205户人家,容积率仅为kaiyun手机网 开云登录网址1.2,绿地率达到30%,这意味着社区环境非常舒适宜居。项目由17栋3层的联排合院、2栋6层的叠加别墅和2栋10层的洋房组成,产品线㎡的墅境洋房,约215㎡/235㎡/270㎡的见山叠墅,以及约265㎡/325㎡/370㎡的山水合院,满足不同家庭的需求。项目预计8月公开售楼处,9月正式开盘,洋房为精装修交付,墅类产品为毛坯状态。项目由中国·苏州·狮山·苏州外国语学校南开发,由苏州新高项阳建设发展有限公司负责开发建设。

狮山芯澜庭壹号院:低密墅区遇上公积金新政置业正当时(图1)

  澜庭壹号院所在的狮山商务创新区,绝对是苏州的C位地段。这里已经集聚了超过1300家外资企业,吸引了近30家总部认定企业入驻,市场主体达8.5万家。2022年实现规模以上工业总产值1821亿元,占全区比重超过50%。区域内拥有677家国家高新技术企业,14家上市企业,以及众多科研机构和创新中心。

  更令人瞩目的是,狮山区域正在迎来新的发展机遇。上市企业总部园与项目仅一路之隔,总投资约13.9亿,定位为产、学、研一体化的上市公司企业总部和数字经济企业总部园。这里已经吸引了华为苏州研究所、阿里巴巴kaiyun手机网 开云登录网址创新中心、微软苏州研究院、西门子苏州创新中心、博世苏州研发中心、中国移动苏州研发中心、中科院苏州纳米技术与纳米仿生研究所、恒瑞医药苏州研发中心、科大讯飞苏州研究院、京东苏州研发中心等知名企业入驻。

狮山芯澜庭壹号院:低密墅区遇上公积金新政置业正当时(图2)

  教育方面,项目周边5大名校云集,包括苏州外国语学校、高新区第一中学,外国语幼儿园(在建)、狮山实验小学、高新区第一初级中学等优质学府(注:非学区承诺,具体以政府划分以及批文为准)。

  商业配套同样丰富,新区美罗、泉屋百货、狮山天街、山姆会员商店、金鹰百货、悠方购物中心等大型城市综合体环伺,日常购物、社交聚会、娱乐休闲、品牌餐饮等一站式繁华生活触手可及。

  澜庭壹号院由两大实力开发商联袂打造:苏州苏高新集团有限公司和绿城管理控股有限公司。

  苏州苏高新集团有限公司是苏州高新区管委会直属的重点国有企业,成立于1990年。秉持让城市生活更美好的品牌理念,集团深耕城市建设、城市服务(狮山文化广场、苏州乐园)、产业园区(江苏省医疗器械产业园、狮山总部经济中心)三大主业。其直属企业苏州新高城市发展有限公司更是住宅项目全口径销售额连续三年突破100亿元的实力房企。

  苏高新集团的澜系作品,如山水樾澜院、狮子山澜院等,都是由集团匠心筑造的低密墅境序列,着力塑造高品质低密标杆作品。

狮山芯澜庭壹号院:低密墅区遇上公积金新政置业正当时(图3)

  绿城管理控股有限公司则是中国房地产轻资产开发模式的先行者、引领者,是绿城中国(的附属公司,2020年7月在香港联交所主板上市(股票代码9979.HK),成为中国代建第一股。绿城管理市场占有率连续8年超20%,位居代建行业首位,业务覆盖128个城市。

  绿城管理荣誉等身:2017至2024年,连续8年蝉联中国房地产代建运营引领企业TOP1;2020至2024年,连续5年蝉联中国房地产代建领先品牌TOP1;2022至2024年,连续3年蝉联中国代建服务商综合实力榜单TOP1等多项行业大奖。

狮山芯澜庭壹号院:低密墅区遇上公积金新政置业正当时(图4)

  澜庭壹号院的低密墅区产品设计充分考虑了现代家庭的生活需求,从洋房到叠墅再到合院,每种户型都有其独特的魅力。

狮山芯澜庭壹号院:低密墅区遇上公积金新政置业正当时(图5)

  洋房产品约115㎡/135㎡,精装修交付,适合追求便捷生活的年轻家庭或小户型需求者。

  叠墅产品包括约215㎡/235㎡/270㎡的见山叠墅,其中中叠236平、上叠258平,空间布局合理,功能分区明确,既能享受别墅的宽敞空间,又不必承担独栋的维护成本。

狮山芯澜庭壹号院:低密墅区遇上公积金新政置业正当时(图6)

狮山芯澜庭壹号院:低密墅区遇上公积金新政置业正当时(图7)

  合院产品约265㎡/325㎡/370㎡,是真正意义上的低密豪宅,拥有独立的院落空间,私密性和尊贵感十足,适合追求高品质生活的大家庭。

  澜庭壹号院最大的优势在于其稀缺性。狮山核心区域经过30年的发展,从城市地理空间上看已然饱和,而项目所在的位置恰好是狮山未来发展的重点区域——上市企业总部园K地块,与项目仅一路之隔。

  其次,项目的低密规划(容积率仅1.2)在当前市场环境下尤为难得,这意味着更舒适的居住环境、更低的建筑密度和更充足的公共空间。

  再者,项目周边配套成熟,教育、商业、交通等各方面资源丰富,生活便利度高。特别是周边聚集的众多高科技企业和研发中心,为区域注入了持续的发展动力。

  最后,两大实力开发商的强强联手,确保了项目的品质和交付标准,为购房者提供了可靠的保障。

狮山芯澜庭壹号院:低密墅区遇上公积金新政置业正当时(图8)

  随着公积金新政的落地,狮山核心区域的澜庭壹号院迎来了绝佳的入市时机。狮山作为苏州高新区的发展核心,已经形成了成熟的产业生态和完善的城市配套,而上市企业总部园的建成和投入使用,将进一步强化区域的产业集聚效应和人才吸引力。

  澜庭壹号院作为区域内稀缺的低密墅区产品,不仅能够满足当下高品质生活的需求,更具备良好的升值潜力。随着狮山区域向长江路形成十字发展轴,狮山商务创新区将迎来新一轮的发展机遇,而澜庭壹号院恰好位于这一发展轴的核心位置,未来价值可期。

  在当前市场环境下,选择一个有发展潜力的区域、一个品质过硬的产品,无疑是明智之举。澜庭壹号院,正是这样一个兼具当下舒适生活与未来价值潜力的优质选择。

狮山芯澜庭壹号院:低密墅区遇上公积金新政置业正当时(图9)

  声明:本文由入驻焦点开放平台的作者撰写,除焦点官方账号外,观点仅代表作者本人,不代表焦点立场。

  稀缺性:仅270户的小社区,容积率仅1.6,居住密度低,舒适度高;位置优越:位于园区独墅湖科教创新区月亮湾东,是苏州发展的前沿区域;交通便利:3公里内有8个地铁站点,立体交通网络发达;配套齐全:7大功能配套满

  在这样的政策背景下,苏州主城区的优质住宅项目成为了许多人才的首选,而今天我们要介绍的正是位于相城区府旁的【蠡棠森屿】项目,它作为苏州主城首席纯四代宅,将为追求高品质生活的购房者带来全新的居住体验。蠡棠森屿依托

  绿城桃源里选在了苏州湾万公堤旁,这可是吴江太湖新城的黄金地段,位置相当优越。项目周边1公里范围内,有万公堤、苏州河湾、苏州河等自然景观,将历史与自然完美融合,是难得的苏州安家之地。绿城桃源里以桃源五境界为设计

  中建御璟峯作为实景准现房,相比期房具有明显优势:所见即所得,无需等待,降低购房风险;项目由中建国际和中建东孚两大央企联合打造,品质有保障;位于苏州高新区科技城板块,是苏州发展的重要区域,升值潜力大;户型设计合

  文脉核芯圈:项目周边百米范围内,保利大剧院、凤凰书城、吴中区公共文化中心、吴中区图书馆、吴中体育馆、现代文体中心等文化地标环绕,让您在繁华都市中也能享受一片文脉涵养,提升生活品质。德邻公寓的户型设计堪称艺术品

  芯火相城企业生长录解码智能驾驶独角兽:为何将全球研发中心落子阳澄湖?

  公积金新政下,建发檀府115-178㎡低密墅品限时优惠,二孩家庭贷款额度最高上浮40%!

  龙湖峯云境最新房价_楼盘评测丨龙湖峯云境售楼处地址丨详情丨龙湖峯云境售楼处电线

  中铁青云府(售楼处)首页网站-苏州中铁青云府售楼中心欢迎您2025楼盘评测-房价户型商圈配套

0750-3092496