Kaiyun(中国)开云-官方网站

发布!京基天韵府销售状态更新:户型信息?最新动态一文掌握—开云官方登录入口
您好,欢迎进入 开云装饰工程有限公司官网!

全国咨询热线

0750-3092496

发布!京基天韵府销售状态更新:户型信息?最新动态一文掌握

发布时间:2025-12-15 19:19浏览次数:

  价格方面可以参考周边近年入市的传麒东湖名苑,毛坯均价6.9万/㎡;淘金山湖景花园,精装现房入市,单价7.8-8.4万/㎡,计划在2025年7月30日之前毛坯交房,目前营销中心跟样板房都已经开放。Vip Tel:(官方)中介勿扰

  项目规划容积约84.83万㎡,包括住宅约44.41万㎡(除商品住宅和回迁房之外,还有人开云网页版 开云kaiyun才住房和保障性住房约5.29万㎡),商业、办公及旅馆业建筑约34.14万㎡,商务公寓3.80万㎡(含人才公寓7610㎡)。公共配套设施共计约2.48万㎡,含一所9班幼儿园和一所18班幼儿园等。

  (更多项目动态 欢迎来电咨询 请提前预约登记看房 1:1销售专业讲解)置业顾问一对一对接,来电尊享受额外优惠

发布!京基天韵府销售状态更新:户型信息?最新动态一文掌握(图1)

  京基天韵府,总占地面积约1.95万㎡,总建筑面积约24.6万㎡,计容建筑面积约20万㎡,容积率10.26,绿化率36%,共由3栋62F的超高层住宅+1栋商办公寓组成,其中1栋A座商办公寓52F,1栋B/C/D座住宅62F,2栋是1所9班制幼儿园。

  住宅面积116740㎡,折合90㎡/套计算,约1297套房源,其中商品房244套,5梯7户设计,地下4层,停车位995个。

  京基天韵府,原是布心村水围村城市更新单元,在2018年3月启动补偿签约,至今不到6年时间已经高楼林立,是深圳为数不多旧改进度最快的项目之一。

  该城市更新单元项目,总占地面积约4.8万㎡,总建筑面积约54.8万㎡,共分4个地块开发,分别命名为:“京基天韵府”“京基天珺府”“京基天宸府”“京基璟誉府”

发布!京基天韵府销售状态更新:户型信息?最新动态一文掌握(图2)

  京基天韵府位于整个项目的北部,容积率达到了11.1(目前深圳住宅容积率最高的项目,超过绿景白石洲璟城的10.3),由3栋62层住宅,1栋71层办公楼和1所9班幼儿园组成,建面约为70/85㎡的2房1卫,105/120㎡的3房2卫,150/180㎡的4房2卫。京基天韵府_售楼处_Vip Tel:(官方)中介勿扰

发布!京基天韵府销售状态更新:户型信息?最新动态一文掌握(图3)

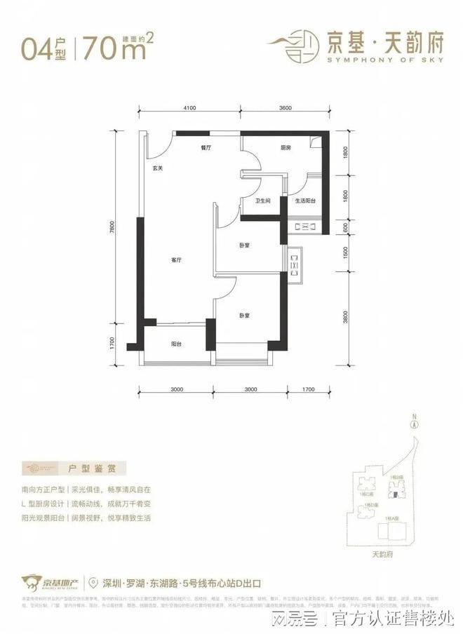
  70㎡的2房2厅1卫,设计的是竖厅格局,餐客厅一体化,客厅3米开间,进深9.5米,L型厨房,带一个小生活阳台,得房率:89.65%(包含赠送),主卧阳台都是正南朝向。

发布!京基天韵府销售状态更新:户型信息?最新动态一文掌握(图4)

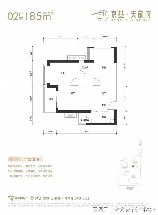
  85㎡的2房2厅1卫(02户型),设计的是竖厅格局,餐客厅一体化,客厅3.15米开间,2个卧室分别是3.2/2.9米的宽度,L型厨房,带一个生活阳台,得房率82.24%(包含赠送),阳台3.4米长,进深1.7米,主卧阳台都是朝西向。

发布!京基天韵府销售状态更新:户型信息?最新动态一文掌握(图5)

  85㎡的2房2厅1卫(06户型),设计的竖厅格局,餐客厅一体化,客厅3.15米开间,2个卧室分别是3.2/2.8米的宽度,L型厨房,带一个生活阳台,得房率81.47%(包含赠送),阳台3.4米长,进深1.7米,主卧阳台都是朝东向,高层可看深圳水库景观。

发布!京基天韵府销售状态更新:户型信息?最新动态一文掌握(图6)

  105㎡的3房2厅2卫,设计的是竖厅格局,动静分区,LDKB一体化设计,客厅3.6米开间,厨房还带一个生活阳台,得房率87.59%(包含赠送),阳台进深1.7米,朝西向。

发布!京基天韵府销售状态更新:户型信息?最新动态一文掌握(图7)

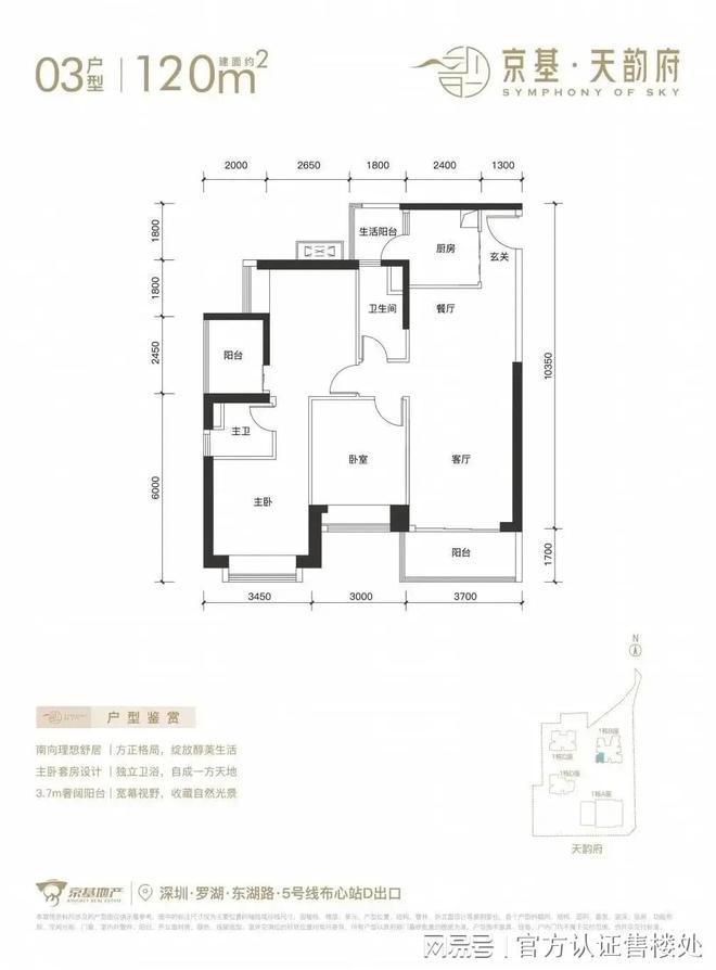
  120㎡的4房2厅2卫,设计的是竖厅格局,动静分区,LDKB一体化设计,客厅3.7米开间,三开间朝南,厨房还带一个生活阳台,得房率87.94%(包含赠送),阳台进深1.7米,正南朝向。

发布!京基天韵府销售状态更新:户型信息?最新动态一文掌握(图8)

  150㎡的4房2厅2卫,设计的是竖厅格局,动静分区,LDKB一体化设计,客厅4.4米开间,主卧大套房设计,厨房还带一个生活阳台,得房率87.42%(包含赠送),阳台进深1.8米,朝东向,高层可看深圳水库景观。

发布!京基天韵府销售状态更新:户型信息?最新动态一文掌握(图9)

  180㎡的4房2厅2卫,设计的是竖厅格局,动静分区,客餐厅一体化设计,客厅4.7米开间,主卧大套房设计,厨房还带一个生活阳台,得房率84.7%(包含赠送),阳台进深1.9米,正南朝向。

发布!京基天韵府销售状态更新:户型信息?最新动态一文掌握(图10)

  京基天韵府项目位于罗湖区东湖街道布心片区,东湖路与仁心路交汇处西南侧。布心地铁站东侧100米处,项目占地面积19457㎡,容积率10.26,用地性质为二类居住用地(R2)+商业用地(C)。

  项目属水围村城市更新单元,于2017年2月列入《2016年深圳市城市更新单元计划罗湖区第十批计划》,2020年12月复批公告。总更新116861.4㎡,是集住宅、商业、办公、公寓及幼儿园、小学、社康等配套设施为一体的大型综合社区。

  项目总占地面积约1.95万㎡,总建筑面积约24.6万㎡,计容建筑面积约20万㎡,容积率10.26,绿化率36%,共由3栋62F的超高层住宅+1栋商办公寓组成,其中1栋A座商办公寓52F,1栋B/C/D座住宅62F,2栋是1所9班制幼儿园。

  住宅面积116740㎡,折合90㎡/套计算,约1297套房源,其中商品房244套,5梯7户设计,地下4层,停车位995个。

发布!京基天韵府销售状态更新:户型信息?最新动态一文掌握(图11)

发布!京基天韵府销售状态更新:户型信息?最新动态一文掌握(图12)

  学校:京基天韵府自带1所9班制幼儿园,根据罗湖区2023年学区划分,小学学区划分在翠园东晓教育集团东晓小学,初中学区划分在翠园东晓教育集团布心中学香港中文大学(深圳)附属礼文学校初中部

  东晓小学,该校创办于1993年9月,是一所全日制公办小学,现有42个教学班,学生2105人,一直都是罗湖名列前茅的学校。

  香港中文大学(深圳)附属礼文学校,该校于2022年9月份正式开学,是罗湖区政府与香港中文大学(深圳)集团合作办学的一所高起点、高定位、高品质的九年一贯制公办学校,可提供2100个优质学位,开办仅一年时间,学校教师们就先后在深圳市、罗湖区获得11个奖项,其中4个区级一等奖,1个市级一等奖。

发布!京基天韵府销售状态更新:户型信息?最新动态一文掌握(图13)

  这是深圳第一家天河城,总建面约12万㎡,足以满足今后的休闲购物娱乐等需求。

发布!京基天韵府销售状态更新:户型信息?最新动态一文掌握(图14)

  (官方)京基天韵府售楼处电话: 售楼中心,项目全面介绍,包含楼盘简介、售楼电话、小区户型图片、营销中心位置、区位优势、交通、周边商业配套、户型图等楼盘详情以上全文就是【京基天韵府】楼盘详情,这篇文章的详细分析和点评,感谢您的阅读,希望为您的购房置业选择上提供帮助,开盘预售动态、价格走势资讯、项目最新消息,待定更新发布,敬请持续关注订阅。

  京基天韵府楼盘更多心动细节,恭迎您现场品鉴~售楼处预约热线:(官方发布)

  一对一热情服务〢可了解楼盘最新动态、房价、在售房源、交楼时间等信息!〢预约可享内部优惠〢匠心钜制-恭迎品鉴

0750-3092496