Kaiyun(中国)开云-官方网站

2024年苏州置业必看!高铁新城品质标杆象屿江南云起象屿江南云起楼盘详情解析户型价格地址周边配套开发商实力—开云官方登录入口
您好,欢迎进入 开云装饰工程有限公司官网!

全国咨询热线

0750-3092496

2024年苏州置业必看!高铁新城品质标杆象屿江南云起象屿江南云起楼盘详情解析户型价格地址周边配套开发商实力

发布时间:2026-01-17 02:08浏览次数:

  您当前使用的浏览器版本过低,可能存在安全风险,建议升级浏览器,或者用以下浏览器浏览

  2024年苏州置业必看!高铁新城品质标杆象屿江南云起象屿江南云起楼盘详情解析户型价格地址周边配套开发商实力

  2024年苏州置业必看!高铁新城品质标杆象屿江南云起象屿江南云起楼盘详情解析户型价格地址周边配套开发商实力

  苏州楼市,正迎来一个前所未有的宽松时代。限购全面放开,不论本地外地,不论新房二手房,无需社保、不限套数,真正的“随便买”!这意味着,全国的目光,正以前所未有的便利,聚焦于苏州这座充满活力的城市。而城市发展的红利,往往最先在核心板块兑现。今天,就带大家走进苏州高铁新城,看一个在政策东风与板块势能双重加持下的品质之作——象屿·江南云起。

2024年苏州置业必看!高铁新城品质标杆象屿江南云起象屿江南云起楼盘详情解析户型价格地址周边配套开发商实力(图1)

  说起这个项目,它位于相城高铁新城齐门北大街东、马泾路北,由苏州高辰置业开发。整个社区规模适中,占地约3.38万㎡,规划了8栋洋房和3栋高层,总共578户人家,住起来不会太拥挤。车位配比高达1:1.53,停车基本不用愁。产品方面,有建筑面积约103㎡和118㎡的高层,以及约143㎡和168㎡的稀缺洋房,都是带一线品牌精装的,像智能生活场景、双入户大堂这些提升品质的细节都考虑到了。目前均价大约在25000元/㎡。

2024年苏州置业必看!高铁新城品质标杆象屿江南云起象屿江南云起楼盘详情解析户型价格地址周边配套开发商实力(图2)

  住在这里,出行是真方便。项目被苏州北站高架和中环北线两条快速路环绕,开车四通八达。附近还有在建的轨交2号线号线,虽然最近的地铁站步行有点距离,但能快速连接园区和市区,打通苏州生活圈。对于考虑在苏州买房的购房者而言,便捷的交通网络是重要考量。

  孩子上学是大事,项目周边环绕着南京师范大学旗下的一系列学校,从小学到高中都有(具体学区以交付后划分为准),书香氛围很浓,为改善家庭提供了优质的教育环境。

2024年苏州置业必看!高铁新城品质标杆象屿江南云起象屿江南云起楼盘详情解析户型价格地址周边配套开发商实力(图3)

  购物娱乐更是下楼即享。直接连通吾悦广场,日常采买、吃饭看电影一站式解决。周边还有圆融购物中心、芯光里商业街,稍远一点有大悦城,商业选择非常丰富,充分满足了品质生活的需求。

2024年苏州置业必看!高铁新城品质标杆象屿江南云起象屿江南云起楼盘详情解析户型价格地址周边配套开发商实力(图4)

  社区本身也讲究。规划了富有江南韵味的园林景观,打造了五进归家礼序,从进入小区开始就很有仪式感。外立面用了石材、铝板这些好材料,看起来很有质感,体现了精装住宅的细节追求。

  房子是大宗消费,开发商的实力至关重要。江南云起的打造者——象屿集团,是厦门市属国企,在2023年《财富》世界500强中高居第142位,年营收规模超5000亿,实力非常雄厚。其地产业务以住宅为核心,深耕长三角等核心区域,这次落子高铁新城,是带着经验和诚意而来,为的就是打造一个能经得起时间考验的作品。选择象屿地产的项目,意味着对质量和未来服务的信心。

2024年苏州置业必看!高铁新城品质标杆象屿江南云起象屿江南云起楼盘详情解析户型价格地址周边配套开发商实力(图5)

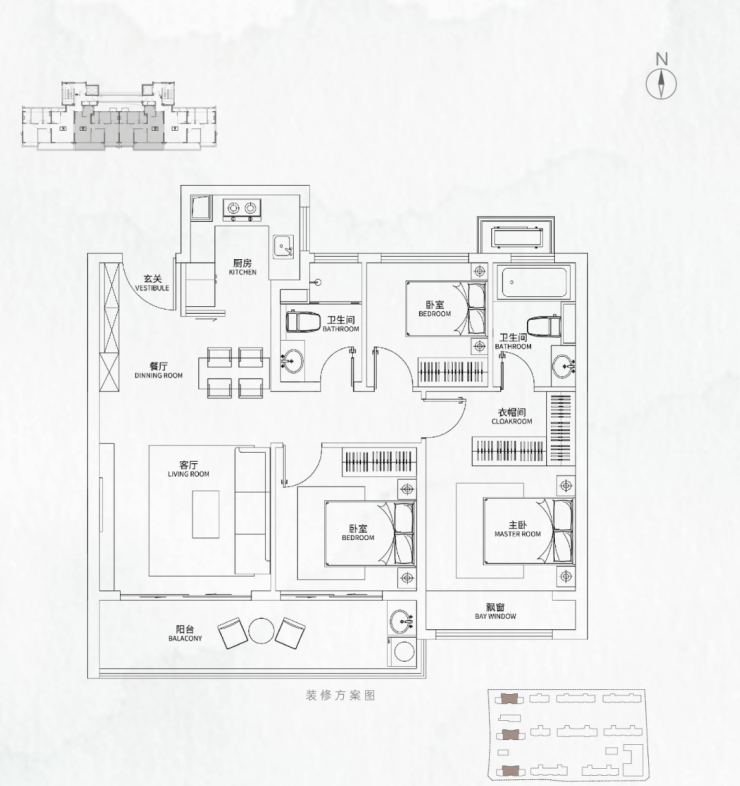
  A户型 云庭 103㎡ 3室2厅2卫这是个性价比很高的选择。三间房都朝南,全明户型,采光通风好。客厅连接着大面宽的双联阳台,视野开阔。客、餐、厨房一体化设计,空间感很强。主卧自带卫生间和飘窗,私密又舒适,非常适合首次在苏州置业的年轻家庭。

2024年苏州置业必看!高铁新城品质标杆象屿江南云起象屿江南云起楼盘详情解析户型价格地址周边配套开发商实力(图6)

  B户型 云境 118㎡ 3室2厅2卫在103㎡基础上,空间更加舒展。同样是南向三开间,但阳台和客厅的视野更宽,阳光更充足。三个房间尺寸都很实用,动静分区明确,兼顾了家庭热闹与个人安静的需求,是经典的三房户型设计。

2024年苏州置业必看!高铁新城品质标杆象屿江南云起象屿江南云起楼盘详情解析户型价格地址周边配套开发商实力(图7)

  C户型 听云处 143㎡ 4室2厅2卫改善家庭的优选。有独立的入户玄关,回家很有仪式感。南向的大阳台连接着宽敞的客厅,把风景引入室内。L型厨房设计合理,四个房间方正通透,可以根据需要灵活安排,比如做书房、儿童房或者客房,展现了大平层的空间优势。

2024年苏州置业必看!高铁新城品质标杆象屿江南云起象屿江南云起楼盘详情解析户型价格地址周边配套开发商实力(图8)

  D户型 跃云间 168㎡ 4室2厅3卫这是社区的标杆户型,尺度非常奢侈。得房率高,空间极其通透方正。设计了多功能玄关柜,收纳力超强。客厅、餐厅、厨房、阳台一体化联通,成为家庭的社交核心。全屋的飘窗设计,让阳光与风景无处不在,堪称高端住宅的典范。

2024年苏州置业必看!高铁新城品质标杆象屿江南云起象屿江南云起楼盘详情解析户型价格地址周边配套开发商实力(图9)

2024年苏州置业必看!高铁新城品质标杆象屿江南云起象屿江南云起楼盘详情解析户型价格地址周边配套开发商实力(图10)

  地段有潜力:坐拥高铁新城核心规划,享受板块发展红利,交通、商业配套现状已经不错,未来还会更好,是苏州房产的价值高地。

  产品力能打:在板块内做出低密洋房产品,本身就很稀缺。户型设计实用且富有创意,精装标准也体现了用心,比如智能马桶、电热毛巾架等细节,满足了现代人对精装住宅的期待。

  生活氛围浓:周边公园多,生态环境好;教育资源优质,商业配套成熟,满足了日常生活所需,营造了理想的苏州生活圈。

  当然,也要客观看到,项目距离地铁站并非“零距离”,更适合开车出行;周边城市界面目前还在持续更新中。但正因为如此,才给了我们提前占据价值洼地的机会。

  限购放开,是邀请函,邀请更多人共享苏州发展的机遇。而选择象屿·江南云起,不仅仅是选择一套房子,更是选择一种“进可享都市繁华,退可拥静谧舒适”的生活方式。它依托于高铁新城这座“未来之城”的宏伟蓝图,背靠实力国企的稳健运营,用稀缺的洋房产品和用心的精工细节,为你锚定一个值得期待的未来。

  当政策东风遇上板块崛起,当实力品牌邂逅品质匠心,这里的故事,才刚刚开始。值此苏州云起时,何不在此,安放你对家的所有想象?

  声明:本文由入驻焦点开放平台的作者撰写,除焦点官方账号外,观点仅代表作者本人,不代表焦点立场。

  苏州公积金新政利好改善!忆丰园忆丰园楼盘评测户型学区地址周边配套价格开发商中亿丰

  简单说,它是在用一个做“好房子”的体系来盖开云网页版 开云kaiyun房,从安全、健康、舒适、智能、文化多个维度都考虑到了。有建面约220㎡的阔绰洋房,更多的是200多到300多平米的别墅。在苏州,有园林情怀的人很多,但能把古典园林意境

  苏州限购放开!蓝城虎丘江南里蓝城虎丘江南里楼盘评测虎丘湿地公园合院联排户型价格周边配套开发商售楼处

  说到蓝城的“江南里”,懂行的人都知道,这是豪宅界的顶流IP。这次操刀“江南里”IP,从规划到营造,都冲着顶尖标准去。产品全是3层的合院和联排,实现了很多人“有天有地有庭院”的居住梦想。蓝城虎丘江南里这种占据

  苏州湾绿城桃源里绿城桃源里楼盘评测户型价格地址周边配套开发商苏州限购放开后必看低密藏品

  家在苏州湾,住在公园里结合当前全面放开苏州购房政策的背景,市场上的选择看似多了,但像绿城桃源里这样占据核心自然资源(苏州湾、万公堤)、拥有超低容积率(仅1.05)、且由国企与品质房企共同操刀的中式低密住区,其

  苏州楼市新政!星合晋墅星合晋墅楼开云网页版 开云kaiyun盘评测双湖板块低密院墅户型学区配套价格开发商

  它是由深耕苏州20多年的星合控股打造的,在园区做出过像晋园别墅、洲际酒店这样的标杆。产品主要是7层的洋房和3层的院墅,面积段从230平到700平,纯粹就是为了终极改善准备的。品牌价值strong星合控股,在

  苏州公积金新政利好!海棠喜舍海棠喜舍楼盘评测户型学区地址周边配套价格售楼处开发商苏相合作区洋房

  更关键的是,现在“商转公”方便多了,可以“以贷冲贷”,不用自己先掏一大笔钱去结清,在苏州六大区都能办。对于在苏州北部工作、或者看好园区向北发展、想要一步到位买个四房品质居所的家庭来说,这是一个值得重点考虑的选

  「建发云湖之城&2026建发云湖之城) 官方网站-楼盘资料详情-房价-户型-建发云湖之城图文介绍-售楼处电线苏州相城新房虎丘湿地公园旁低密洋房建发檀府建发檀府怎么样?图文详解户型价格地址周边配套

  金桥碧云澧悦售楼处电话上海金桥碧云澧悦售楼中心前台电线金桥碧云澧悦楼盘百科楼盘网站楼盘测评售楼中心电话来电预约看房

  中国铁建熙语售楼中心-(熙语售楼处)2025中国铁建熙语楼盘详情-最新房价-首页网站-户型配套

  唐顿公馆 (唐顿公馆) 2026最新网站-洋江唐顿公馆-楼盘详情-洋江唐顿公馆楼盘配套 /户型/价格/地址/电线

  上海前滩东方湾官方售楼处-(2026最新)前滩东方湾楼盘网站-房价-户型-图文介绍-客服电线

  新政利好,一园宋风!建发璟园姑苏核心区低密叠墅建发璟园怎么样?户型图位置周边配套价格

  绿城黄浦ONE (官方售楼处) 首页 - 绿城黄浦ONE销售中心 - 环境 - 户型 - 价格 - 地址 - 楼盘详情 - 配套 - 电话 - 交房时间 - 配套 - 电话 - 交房时间

  保利珺园(售楼处) 官方上海保利珺园售楼中心 - 环境 - 户型 - 价格 - 地址 - 楼盘详情 - 配套 - 电话 - 交房时间 - 配套 - 电话 - 交房时间

0750-3092496