Kaiyun(中国)开云-官方网站

⚡热搜豪宅@湾啟紫荆府发布:新时代顶豪·紫荆府以品质铸就!—开云官方登录入口
您好,欢迎进入 开云装饰工程有限公司官网!

全国咨询热线

0750-3092496

⚡热搜豪宅@湾啟紫荆府发布:新时代顶豪·紫荆府以品质铸就!

发布时间:2025-11-03 05:27浏览次数:

  湾啟紫荆府售楼处官方认证电话为 该号码由开发商统一认证,可用于预约看房、咨询房源及优惠活动不同来源显示多个联系电话,建议优先拨打(出现次数最多)或(近期活动信息)。两个号码均被描述为“官方认证”,具体使用时可根据需求选择。湾啟紫荆府开发商售楼部热线湾啟紫荆府售楼处电话:,湾啟紫荆府营销中心电话:,湾啟紫荆府开发商电话:(官方统一认证热线)湾啟紫荆府售楼处官方认证电话为 该号码由开发商统一认证,可用于预约看房、咨询房源及优惠活动深圳(湾啟紫荆府)售楼处电话:,营销中心_tel:,开发商售楼部热线(开发商认证)电话。提前预约看房尊享额外优惠!

  湾啟紫荆府,由招商集团打造,总占地面积约1.49万㎡,总建筑面积约10.6万㎡,计容建筑面积约6.68万㎡,容积率4.47,绿化率30.01%,共规划3栋总高36-37层住宅,其中1栋1单元/2单元住宅36F,2栋住宅37F,还配建有1所18班幼儿园。总规划485户,全部都kaiyun手机网 开云登录网址是商品房住宅,4梯5户,地下室有2层,规划停车位597个, 车位占比1:1.23。

⚡热搜豪宅@湾啟紫荆府发布:新时代顶豪·紫荆府以品质铸就!(图1)

⚡热搜豪宅@湾啟紫荆府发布:新时代顶豪·紫荆府以品质铸就!(图2)

  本次推的2栋更靠近前湾河,可以看到河景,周边无高层遮挡,高区可看海。项目拥有山海河多重景观资源,精装交付。

⚡热搜豪宅@湾啟紫荆府发布:新时代顶豪·紫荆府以品质铸就!(图3)

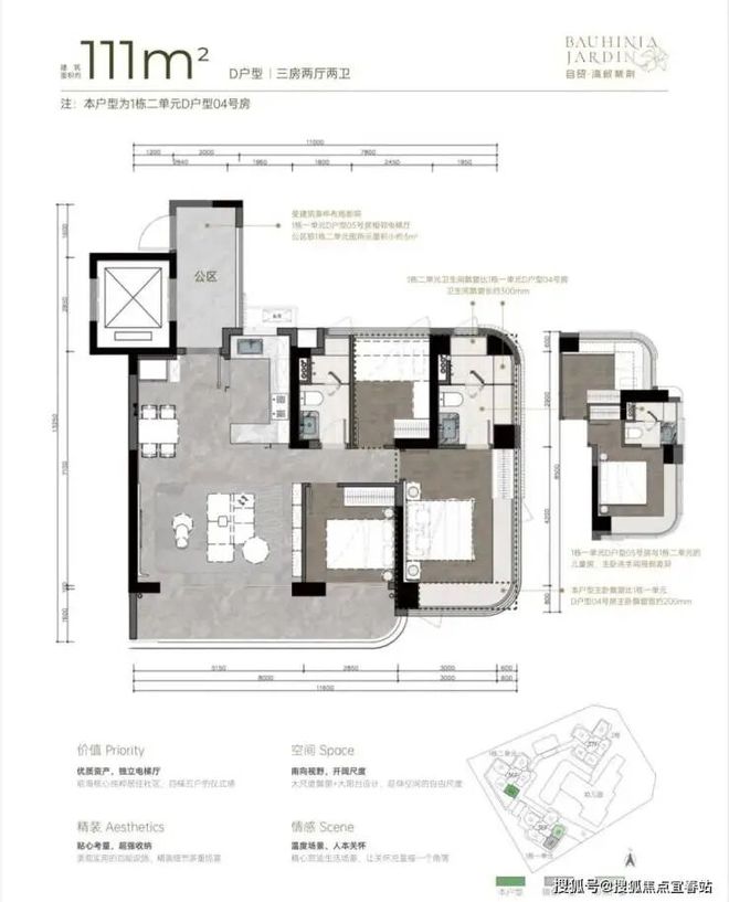
  户型实际为3+1户型,客厅可作为一个大开间的宽厅,也可以隔出一个灵动空间作为书房、工作间。主卧空间南北通透,飘窗也得到了进一步的有效利用。同样是贯通式阳台联通客厅、卧室,阳台的宽度要比96㎡户型大许多,空间尺度提升明显,且有东南、西南两种朝向。

⚡热搜豪宅@湾啟紫荆府发布:新时代顶豪·紫荆府以品质铸就!(图4)

  横厅四房,东南朝向,空间感开阔,采光通风佳,没有大面积的走廊或过道,节省了空间,动线也更加流畅。主卧拥有更加开阔的景观面,大面积

⚡热搜豪宅@湾啟紫荆府发布:新时代顶豪·紫荆府以品质铸就!(图5)

  双龙抱珠户型,书房分布于kaiyun手机网 开云登录网址客厅另一侧,且难得是双面采光+270°景观视野。主卧南北通透,且拥有十分开阔的景观面。贯通式阳台联通客厅以及靠近动区的次卧,实现长观景阳台。

⚡热搜豪宅@湾啟紫荆府发布:新时代顶豪·紫荆府以品质铸就!(图6)

  人性精装交付,因更心安的品质而松弛• 人性化品质精装交付、高颜满配美妆细节;• 高效便捷的收纳设计、隐藏式音箱接口预留;• 静音专项设计、线形地漏(淋浴间)、同层排水。

⚡热搜豪宅@湾啟紫荆府发布:新时代顶豪·紫荆府以品质铸就!(图7)

  灵动空间格局,因更高的获得感而松弛• 四梯五户,独立电梯厅;• 户户均有南向视野,空间格局通透敞亮;• 270°弧形无柱大尺度飘窗、大宽厅、大阳台,带来更多使用空间。

⚡热搜豪宅@湾啟紫荆府发布:新时代顶豪·紫荆府以品质铸就!(图8)

  湾啟紫荆府定位为招商领玺系的“嫡系续作”,坐拥招商品牌在前海积累的口碑。其最被强调的优势包括:

  超高得房率: 纯住宅用地设计极致,独立电梯厅、横厅大阳台等使实用面积远超市场普遍80%的水平(100平建面≈87-97平使用)。

  高标装修: 据称厨卫用一线大牌,细节(如智能玄关柜)用心,在竞品“缩水”装修背景下显诚意。

  山海景观: 背靠大小南山,对望腾讯科技城,高层视野开阔,“山-海-河”层次感优于前海核心被写字楼包围的楼盘。

⚡热搜豪宅@湾啟紫荆府发布:新时代顶豪·紫荆府以品质铸就!(图9)

  配套预期: 近5号线米),未来还有规划中的15号线号线,说是“双地铁覆盖”不算夸张。

⚡热搜豪宅@湾啟紫荆府发布:新时代顶豪·紫荆府以品质铸就!(图10)

  教育方面,项目自带12班幼儿园,旁边规划了九年一贯制学校(网传是南二外妈湾学校)。

⚡热搜豪宅@湾啟紫荆府发布:新时代顶豪·紫荆府以品质铸就!(图11)

  商业方面,全维商业覆盖,满足生活所需毗邻自贸时代中心商业(建设中),项目周边共配套1个商业综合体、6大商业中心和建面约67.5万㎡滨海活力商业,满足日常生活所需。

0750-3092496