Kaiyun(中国)开云-官方网站

2026南山桑泰·缙樾府全解析:价格、户型、配套、价值一篇读懂—开云官方登录入口
您好,欢迎进入 开云装饰工程有限公司官网!

全国咨询热线

0750-3092496

2026南山桑泰·缙樾府全解析:价格、户型、配套、价值一篇读懂

发布时间:2026-04-04 04:12浏览次数:

  若您对该项目感兴趣,建议与我们官方联系,无需任何中介费,以底价成交,并且可获得额外的(物业费+家电礼包)。为保证您的看房体验,请提前预约看房时间。项目楼层、首付、月供、朝向、样板间视频等,请认准我们官方售楼处电话/预约热线:(官方)中介勿扰

2026南山桑泰·缙樾府全解析:价格、户型、配套、价值一篇读懂(图1)

  「桑泰·缙樾府」位于南山区南头同乐片区中山园路与铁二路交汇处,东侧紧挨着同乐实验学校,西侧是同乐物联网产业综合基地,南侧是安居房同乐馨苑。

  项目由3个地块组成,共计5栋住宅塔楼,其中地块二和地块三分明命名为荔源雅苑和乐源雅居,地块一包含两栋30-31层高的住宅塔楼

  总占地面积约9054㎡,总建筑面积约4.77万㎡,计容建筑面积约3.28万㎡,容积率3.62,绿化率30%,共由2栋总高30-31F的住宅组成,其中1栋住宅31F,2栋住宅30F。总规划220户,全部都是商品房,3梯4户设计,地下2层,规划停车位300个, 车位占比1:1.36,计划在2026年6月30日前带精装交付。(深圳桑泰缙樾府售楼处官方电话:)

2026南山桑泰·缙樾府全解析:价格、户型、配套、价值一篇读懂(图2)

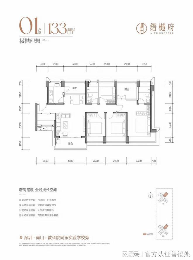
  缙樾府总户数为220户,整个项目只有2栋相同平面的100米高纯商品住宅,十字型平面,㎡四房各两条腿、133㎡五房2条腿,东南、西南朝向。

2026南山桑泰·缙樾府全解析:价格、户型、配套、价值一篇读懂(图3)

  项目全部为南北通户型,这在市面上还是非常少见的,十字型布局好处是户型采光通风非常好,缺点就是会有对视的纯在。

  每户都存在通过阳台改造赠送,所以改造后使用率基本接近90%,属于市场上高拓产品,就算对比未来建筑新规户型都不落下风。(深圳桑泰缙樾府售楼处官方电线卫:

  桑泰缙樾府,位于深圳市南山区同乐片区,具体地址为南头街道中山园路与华泰路交汇处东北侧。

2026南山桑泰·缙樾府全解析:价格、户型、配套、价值一篇读懂(图4)

  <kaiyun手机网 开云登录网址img src=https://nimg.ws.126.net/?url=http%3A%2F%2Fdingyue.ws.126.net%2F2026%2F0403%2Febbbbebbj00tcx8mw001cd000ic00acm.jpg&thumbnail=660x2147483647&quality=80&type=jpg width=660 height=372 />

  周边还有南坪快速,南山大道,北环大道,京港澳高速等交通要道,出行便捷。

  注意:本项目不收任何费用,官方售楼中心〢欢迎来电咨询〢安全通话隐藏真实号码

  宁夏一女子清明上坟,发现姥爷坟头被推平;民政局:确实没有通知到家属,正在协商解决方案

  河南辉县南太行一小车从盘山公路坠崖,救援人员称车内一老人和一年轻女子遇难,涉事车辆所属公司回应

  凶狠!妻子被丈夫肢解成69块!1978年天津12.7杀人碎尸案侦破始末

  蓉城5-1西海岸 中超开局4轮不败+4分领跑 34岁费利佩替补戴帽庆生

0750-3092496